14248 James Core Rd
Folsom, LA 70437

Scroll to Content

Details

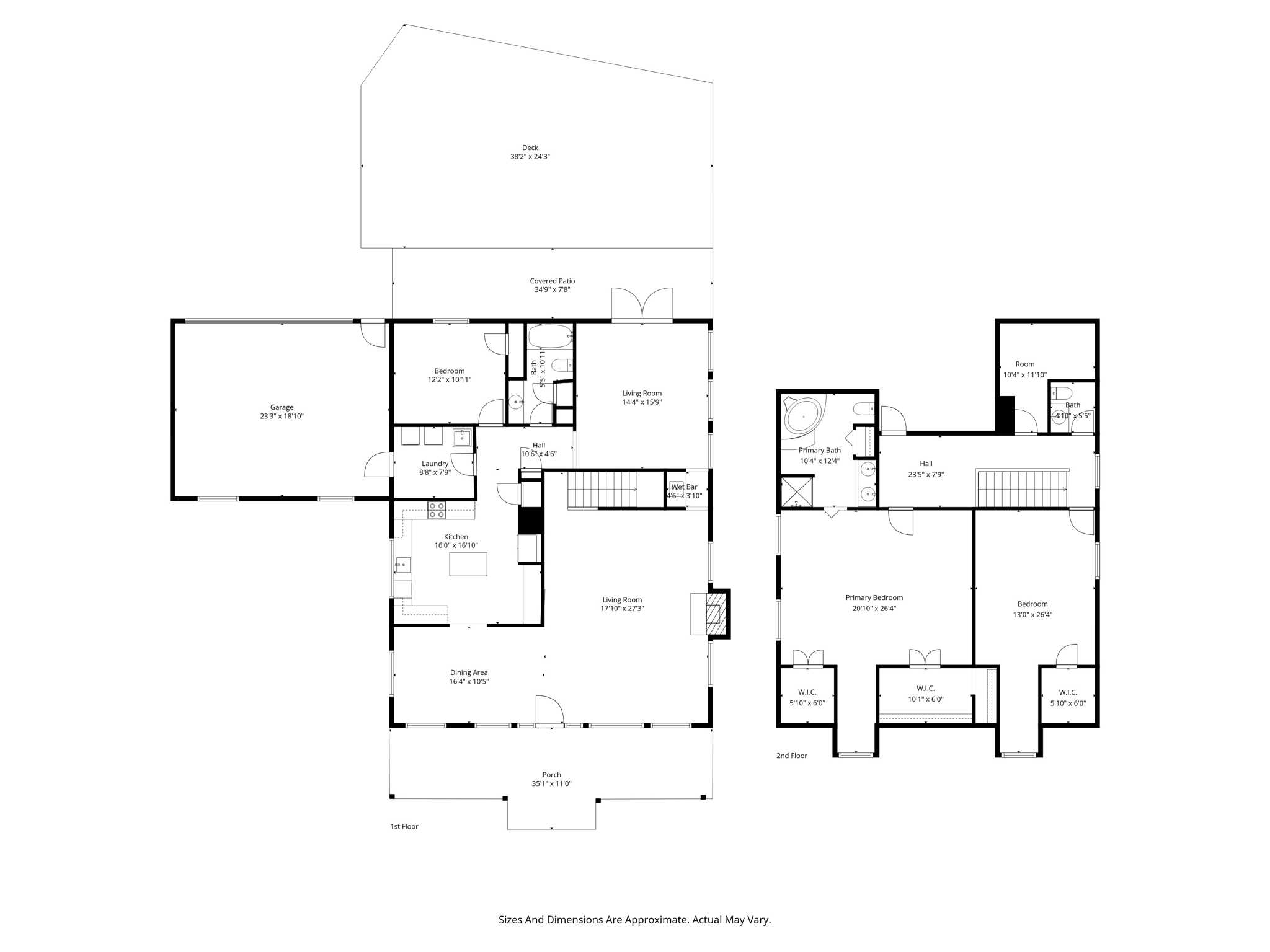
Hobby farm on 5+ acres with a move-in ready home, versatile barn, and horse-ready pasture. Recent improvements make this a rare opportunity for those seeking space, function, and rural charm. Located in-between Folsom and Covington off Highway 25. Barn has 5 stalls, wash rack with hot and cold water, climate-controlled tack room and space for a bathroom. Run in for the horses built onto the side of the barn as well. The barn does have a 2nd story that can be built out as an apartment. Home and barn are wired for quick connect generators. Improvement/amenity list attached.

  • $525,000
  • 3 Bedrooms
  • 2.5 Bathrooms
  • 2,606 Sq/ft
  • Lot 5.18 Acres
  • 6 Parking Spots
  • Built in 1992
  • MLS: 2553376

Images

Floor Plans